top of page
NEIGHBORHOOD LIVING FACILITY, HYEHWA
혜화동 근린생활시설
설 계 : 김효영 건축사사무소
위 치 : 서울특별시 종로구 혜화동
용 도 : 근린생활시설
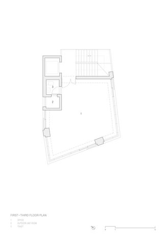
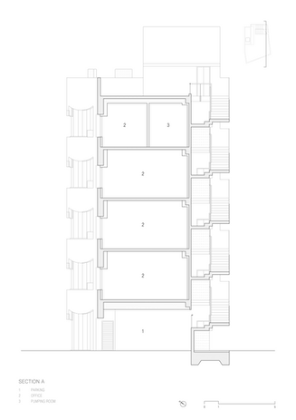
대지면적 : 92.6 ㎡
건축면적 : 69.27 ㎡
연 면 적 : 307.02 ㎡
건물규모 : 지상5층
주요마감 : 콘크리트스테인
사 진 : 김효영 건축사사무소
ARCHITECT : KHY ARCHITECTS
LOCATION : HYEHWA-DONG, JONGNO-GU, SEOUL
FACILITIES : NEIGHBORHOOD LIVING FACILITY
SITE AREA : 92.6sqm
BUILDING AREA : 69.27sqm
TOTAL FLOOR AREA : 307.02sqm
STORIES : 5F
MATERIAL : CONCRETE STAIN
PHOTO : KHY ARCHITECTS
2022
bottom of page














