top of page
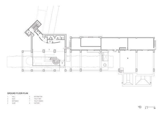
ABANDONED STONE QUARRY, MUREONG 3-JIGU
무릉3지구 폐쇄석장 문화재생사업
설 계 : 김효영 건축사사무소, 정희철
위 치 : 강원도 동해시 삼화동
용 도 : 문화 및 집회시설
대지면적 : 39,013 ㎡
건축면적 : 636.89 ㎡
연 면 적 : 2060.31 ㎡
건물규모 : 지하4층, 지상4층
주요마감 : 노출콘크리트, 지정 골강판
사 진 : 황효철
ARCHITECT : KHY ARCHITECTS, HEECHUL JUNG
LOCATION : SAMHWADONG, DONGHAE SI, GANGWON DO
FACILITIES : CULTURAL FACILITY
SITE AREA : 39,013sqm
BUILDING AREA : 636.89sqm
TOTAL FLOOR AREA : 2,060.31sqm
STORIES : B4F, 4F
MATERIAL : EXPOSED CONCRETE, CORRUGATED SHEET
PHOTO : HWANG HYOCHEL
2019
bottom of page

























